 +8
  +830 жовт. 2018 15:51

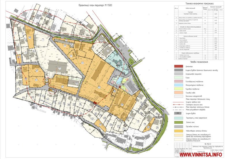
У Вінниці проведуть громадські слухання щодо містобудівної документації «Детального плану території в межах вулиць Черняховського – Карбишева». Це мікрорайон Сабарів. Протягом 3-7 років територію (з дитсадком і церквою) планують впорядкувати.
Оголошення про громадські слухання опубліковано на сайті міської ради.
Загальна площа ділянки, на яку розробили містобудівну документацію, 8,2 га, із яких 4,1 га в приватній власності. Зона врегулювання території 0,6 га. Існуючий і проектний план території відрізняються місцем розташування червоних ліній. Новою документацією передбачено їх змістити від дитсадка. При цьому площа санітарних смуг захисної зони залишається незмінною.
Громадські слухання відбудуться 1 листопада о 18:30. За адресою: м. Вінниця, вул. Черняховського,74 (КЗ «Вінницький міський клуб»).
«З основними техніко-економічними показниками детального плану території, графічними матеріалами та додатковою інформацією можна ознайомитись в департаменті архітектури та містобудування Віннинцької міської ради в робочі дні (з 16 до 17 години, к. 20).
Відповідальні особи щодо розгляду пропозицій – працівники Відділу просторового розвитку департаменту архітектури та містобудування Вінницької міської ради, тел. 67-23-65.
Пропозиції та зауваження з даного питання просимо надсилати до департаменту правової політики та якості Вінницької міської ради за адресою: м. Вінниця, вул. Соборна, 59, каб. 710, тел. 59-51-55, 59-51-59.
Для участі у громадських слуханнях просимо мати при собі документ, який посвідчує особу та підтверджує місце реєстрації», - зазначено у повідомленні.

 
Нагадаємо, що громадські обговорення тривали до 3 вересня.