8 лют. 2018 11:22

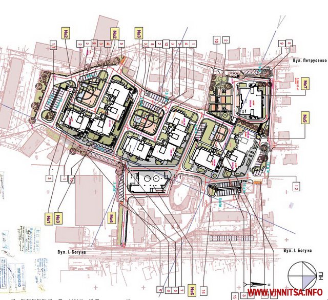
На сайті Вінницької міської ради розмістили оголошення про повторне громадське обговорення щодо будівництва житлово-громадського комплексу по вулиці Івана Богуна №27.
Згідно генерального плану, загальна площа території становить близько 25 258 метрів квадратних. На ній хочуть спорудити:
Замовник документації ТОВ «Промислова група «Вінниця-Буд».

З матеріалами та додатковою інформацією можна ознайомитися в департаменті правової політики та якості Вінницької міської ради за адресою: м. Вінниця, вул. Соборна, 59, каб. 710, тел. 59-51-59, 59-51-55. Пропозиції та зауваження з даного питання можна надсилати до департаменту правової політики та якості Вінницької міської ради за вказаною вище адресою.





Територія забудови

Раніше ми писали, про почaток громaдського обговорення щодо детaльного плaну зaбудови першої черги чaстини Стрижaвської сільської рaди, якa включенa в межі Вінниці. А також публікували проект забудови першої частини вулиці Сергія Зулінського – навпроти підшипникового заводу.