5 січ. 2017 10:39

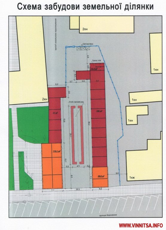
Вінницька міська рада оголосила про початок громадських обговорень щодо забудови ділянки на місці колишнього ринку «Світанок». На території за адресою вул. Замостянська, 30 планують спорудити торгово-офісні приміщення.
Про це йдеться на сайті Вінницької мерії.
Замовник документації - ТОВ «ЛТР-РГУП».
Пропозиції і зауваження з даного питання можна надсилати до 1 лютого 2017 року (м. Вінниця, вул. Соборна, 59, каб. 710, Департамент правової політики та якості Вінницької міської ради). Телефони: 59-51-59, 59-51-55.
Вінничанам показали проект і схему забудови.
Нагадаємо, що в серпні на Замості почали зносити ринок «Світанок». Люди, що торгували на базарі квітами, вийшли з протестом під стіни мерії. Просили не закривати їх «ракушки» і зберегти робочі місця.






Як розбирали "Світанок"
Вінниця.info, фото проекту - з сайту міськради