4 лют. 2020 09:16

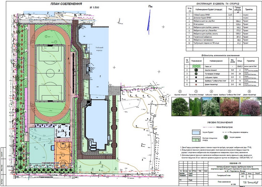
Біля Вінницького національного медичного університету ім. Пирогова капітально відремонтують стадіон. Спортивне ядро матиме нові бігові доріжки, майданчики для волейболу і стрибків, тренажери та гімнастичне обладнання.
Про це 4 лютого повідомив у «Фейсбук» радник міського голови Віктор Перлов.
Проект реконструкції передбачає створення наступних об'єктів:
Роботи планується виконати до початку наступного навчального року. Завдяки цьому студентам більше не доведеться ходити на заняття фізкультурою до Центрального парку.




Вiнниця.info, фото - зі сторінки В.Перлова